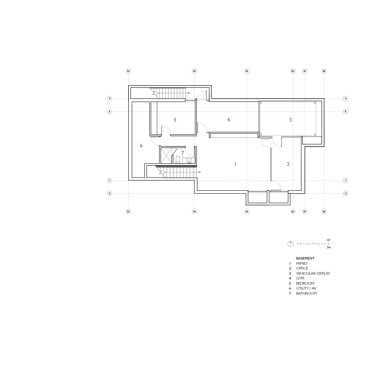
Hartzell-Basement-Plan
Comments are closed.
Architecture
Branding
Interiors
Product Design
Web
About
Leadership
Contact